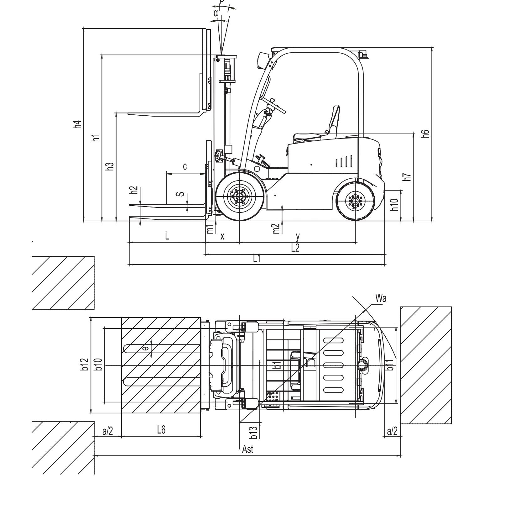
Electric Counterbalance Truck
1.5/1.8/2.0/2.5T Electric Counterbalance Forklift
Rated Capacity
2000kg
Load Center Distance
500mm
Lift Height
3000mm-6000mm








Phone